Ventas
Terreno en Elviria, Marbella | Parcela con Proyecto de Villa de Lujo junto a Santa María Golf
Terreno en Elviria, Marbella | Parcela con Proyecto de Villa de Lujo junto a Santa María Golf
SKU:R4892095
Parcela en Elviria, Marbella, con licencia y proyecto para villa de lujo. Ubicación privilegiada junto a Santa María Golf y cerca de Puerto Banús.
Descripción
Descripción
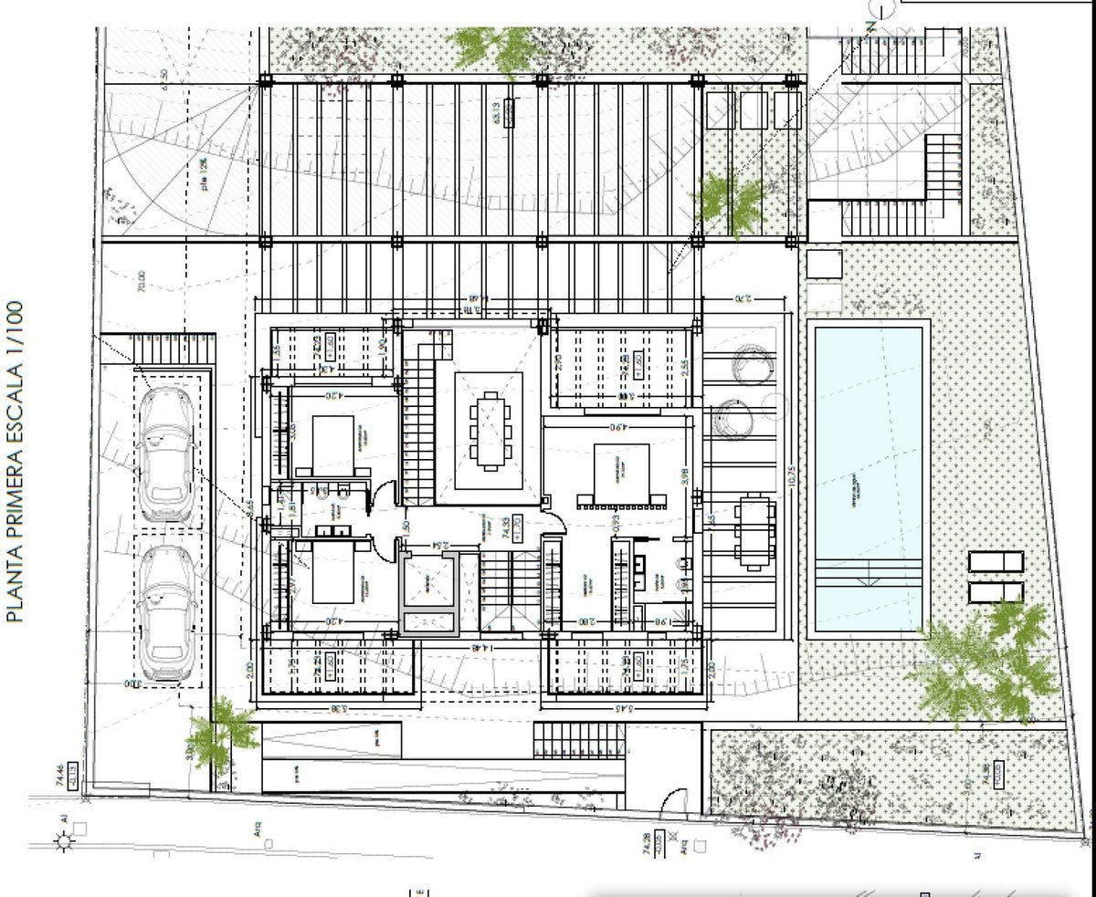
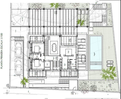
Fantástico terreno en venta en Elviria, Marbella, ideal para quienes desean construir una villa de lujo en una de las zonas residenciales más exclusivas de la Costa del Sol. La parcela cuenta con una ubicación estratégica junto al prestigioso Santa María Golf, rodeada de naturaleza, tranquilidad y a pocos minutos de las mejores playas de Marbella.
La propiedad dispone de dos accesos desde distintas calles, lo que ofrece gran comodidad y privacidad. Además, ya cuenta con licencias aprobadas y un proyecto para edificar una espectacular villa de dos plantas, sótano y solárium con vistas panorámicas.
Este terreno representa una excelente oportunidad de inversión en Marbella, ya que combina la exclusividad de vivir en un entorno de golf con la cercanía a todos los servicios. A tan solo 10 minutos en coche se encuentra el centro de Marbella y en menos de 20 minutos se llega a Puerto Banús, famoso por su ambiente cosmopolita, tiendas de lujo y restaurantes de alta gastronomía.
Elviria es una de las áreas más solicitadas de Marbella, reconocida por su prestigio, playas de arena fina, chiringuitos y colegios internacionales. Contar con una parcela con licencia y proyecto listo para construir acelera el proceso de desarrollo, facilitando la creación de una vivienda personalizada en una ubicación inmejorable.
En definitiva, este terreno en venta junto a Santa María Golf es una oportunidad única para construir una villa de ensueño en Marbella, disfrutar del estilo de vida mediterráneo y asegurar una inversión con gran proyección de valor en el mercado inmobiliario de la Costa del Sol.
Características
Características
Contrato: Ventas
M² construidos:
M² terraza:
M² parcela:
Localidad: Marbella Este
Tipo de propiedad:
- Terreno
Dormitorios:
Baños:
Posición:
Orientación:
Estado:
Piscina:
Climatización:
Vistas:
Características:
Muebles:
Cocina:
Jardín:
Seguridad:
Aparcamiento:
Servicios públicos:
Categoría:
Terreno / comercial:
- Terreno
Alquileres:
Certificado energético: N/A
Gastos comunidad:
Tasa basura:
Tasa IBI:
Compartir

Solicite información
También le puede interesar:
-
Villa en Río Real, Marbella Este | Proyecto de Reforma cerca de Golf y Playa
Precio habitual €2.450.000,00 EURPrecio habitualPrecio unitario / porPrecio de oferta €2.450.000,00 EUR -
Finca de Recreo en Mijas Golf | Oportunidad Cerca de La Cala de Mijas
Precio habitual €170.000,00 EURPrecio habitualPrecio unitario / porPrecio de oferta €170.000,00 EUR -
Apartamento Reformado en Marbella Centro | Terraza de 60 m² a Pocos Metros del Paseo Marítimo
Precio habitual €129.000,00 EURPrecio habitualPrecio unitario / porPrecio de oferta €129.000,00 EUR -
Local Comercial en Marbella Centro | 42 m² en Esquina con Opción de Cambio a Vivienda
Precio habitual €220.000,00 EURPrecio habitualPrecio unitario / porPrecio de oferta €220.000,00 EUR